Agricultural Weighing Scales(List)
Flexible-container scale(FSDⅡ-30)
A machine weighing 1t Flex-con and 30kg paper bag all in one.
Ideal for farmers and agricultural corporations etc. who deliver brown rice with flex-con.
Flexible-container pouch weighing scale with elevator/tank.
Appearance
Features
● The lift (lifting capacity: 4 t/hr) and the tank (capacity:2000 kg) are included.
● This scale is capable of weighing various containers from a 1-ton flexible container to a 30-kg paper bag.
● An automatic sampling machine(sampler) is attached.
● Sampling bags used for the sampler are attached.
(120 mm (W) ×180 mm (L), 1500 bags/roll)
Specification
Model | FSDII-30 |
---|---|
Processing capability | 4t/h |
Tank capacity | 2000kg |
Elevator | |
Bucket width | 4 inch |
Capability | 4t/h |
Required power | Three-phase AC 200 V 0.4 kW |
Weighing part | |
Weighing method | Load cell type accumulated amount |
Capacity of Scale | 35kg |
Scale Interval | 10g |
Accuracy | ± 20 g (in case of 30kg pouch) |
Weighing range | 2~1500kg |
Power supply | Single phase AC 100 V 50/60 Hz |
General specifications | |
Coating color | Munsell 5Y7/1 |
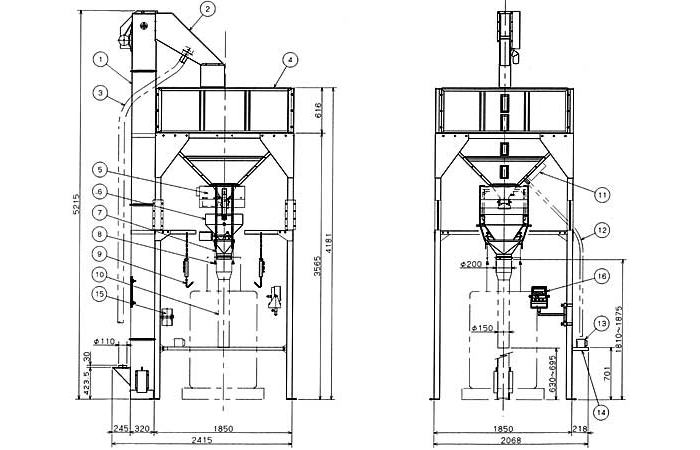
External form
1: Elevator
2: Elevator discharge chute
3: Overflow hose (φ 75)
4: Tank
5: Supply shutter (2-step control)
6: Weighing hopper
7: Discharge chute
8: Flex-con mouth hanging clip
9: Flex-con shoulder hanging fitting
10: Chute for pouch
11: Sampler
12: Sample hose (φ 38)
13: Sample receiving cup (capacity 1 L)
14: Sample receiver
15: Open bag for sample
16: Indicator (TR-70K)
Contact us from here.